您好~欢饮光临浏阳市集里辉浩模型厂官方网站~

从设计到交付:三峡建管中心垂直升船机健康监测系统的全周期突破

时间: 2023-10-23 11:11:27来源: 浏阳市集里辉浩模型厂

从设计到交付:三峡建管中心垂直升船机健康监测系统的全周期突破

发稿日期:20231023日,项目方:三峡建管中心

202310月,我司为三峡建管中心量身打造的垂直升船机健康监测系统装置成功落地,标志着我国在大型水利工程智能监测领域的又一突破。该系统以等比例模型为核心,覆盖从结构设计到安装调试的全流程服务,充分展现了我司提供需求分析-方案设计-生产制造-现场实施的全过程解决方案能力。

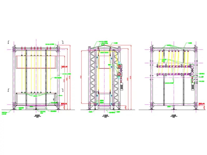
 【垂直升船机健康监测系统装置-正面

 

一、系统结构与核心功能

装置包含五大核心模块:承船厢模拟单元(长方体结构替代传统闸门,配置双液位传感器实时监测水位变化,通过电磁阀实现自动注排水)、齿轮齿条提升单元(集成倾角与加速度传感器,实时捕捉运行姿态)、电动驱动单元(替代液压系统,配置振动监测传感器)、简易控制系统(支持现地按钮与远程TCP/IP双模式控制,具备急停与灯显安全装置)及数据传输单元(集成电机电压、电流、转速、温度及减速机扭矩信号,通过模拟量或通讯方式接入总控系统)。

 【图纸设计


二、技术难点与创新突破

项目面临三大挑战:一是无水源环境下的注排水系统适配,通过接入自来水管网与排水沟直排设计,实现废水零囤积;二是齿轮齿条模拟工况的复杂性,需在润滑不良、点蚀、异物介入等极端条件下保障过载能力,传感器采用结构胶贴装技术,确保振动信号采集稳定性;三是多源信号的同步传输与集成,通过优化通讯协议与硬件接口,实现16路监测数据的实时上传与分析。

 【工厂成品,基本结构生产完毕

 

三、实验价值与客户收益

该系统为客户提供三大核心实验支持:一是升船机运行流程模拟(注排水、升降动作的远程/现地双控演示);二是传动链健康状态评估(通过振动、扭矩数据识别电机与减速机异常);三是齿轮齿条故障预警(模拟极端工况下的姿态变化与振动特征,为真机运维提供数据支撑)。通过全周期监测,帮助客户实现设备故障提前预警、运行效率优化及试验数据的精准积累,为大型升船机的安全运维提供科学依据。 

 垂直升船机健康监测系统装置-侧面


项目咨询

张经理:13975878997

余经理:19376966128

 

推广产品:

垂直升船机健康监测系统水利工程智能监测装置齿轮齿条状态监测传动链振动分析系统升船机等比例模型实验远程控制升船机模拟装置